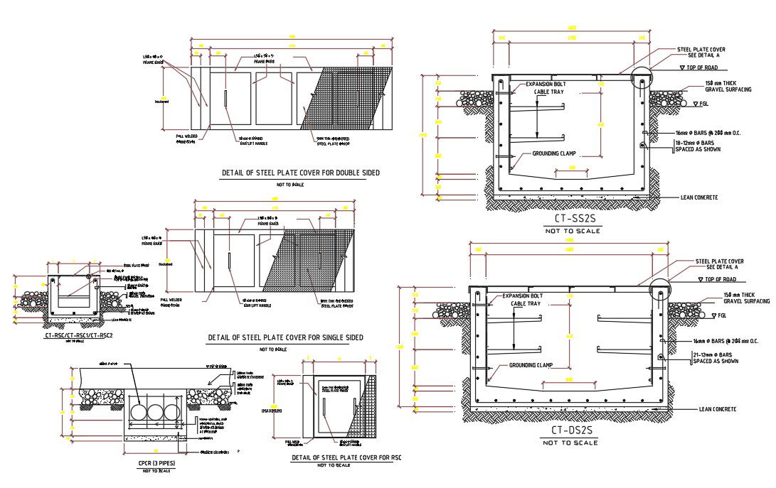
The file shows the detailed drawing of steel plate cover for single and double side. Download the DWG file.
Description
The file shows the detailed drawing of steel plate cover for single and double side. Three numbers 150mm dia of PVC pipe is used to insert the cable under the ground surface. 200mm thick concrete pavement is provided below the road surface and 150mm thick aggregate sub base is provided below the concrete pavement. The dimensions are not to scale. Thickness of steel plate cover is 5mm. Thanks for downloading the 2D Autocad file and other CAD files from our website.
Uploaded by:
