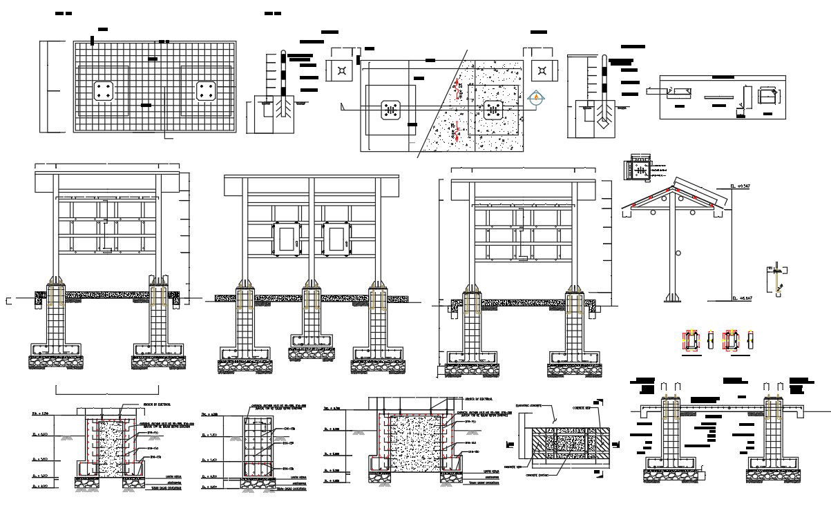
The file shows the section of foundation in 2D Autocad DWG drawing file. Download the DWG file.
Description
The file shows the section of foundation in 2D Autocad DWG drawing file. The size of base plate is 250x250x12mm. Their main function is to transmit the structure stresses to the concrete footing surface and to link the column bottom end to the footing. Stiffener plate size is 12mm. Stiffeners are secondary plates or sections which are attached to beam webs or flanges to stiffen them against out of plane deformations. Almost all main bridge beams will have stiffeners. However, most will only have transverse web stiffeners, i.e. vertical stiffeners attached to the web. Thanks for downloading the 2D Autocad file and other CAD files from our website.
Uploaded by:
manveen
kaur

