Villa of basement plan, ground floor, first floor and roof plan has given in Autocad 2D drawing file. Download DWG file.
Description
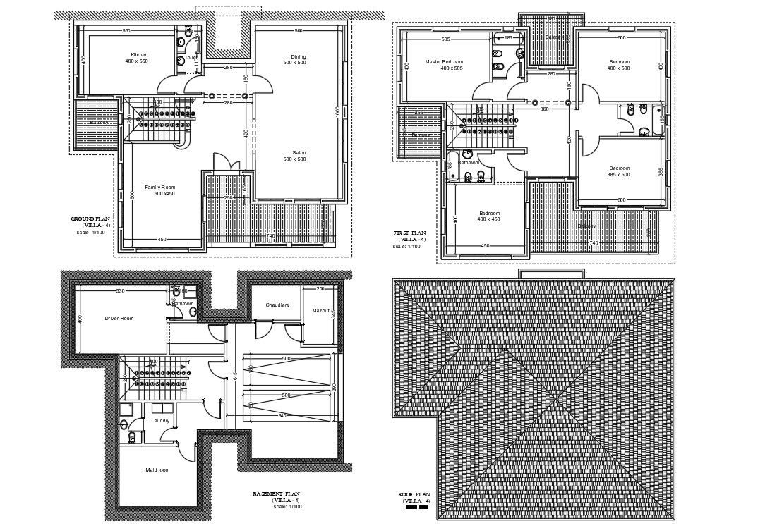
Villa of basement plan, ground floor, first floor and roof plan has given in Autocad 2D drawing file. At basement drive room, laundry, maid room, bathroom, mazout and chaudiere are available. At ground floor plan contains of family room, salon, dinning, kitchen and balcony. First floor having the master bed room, three bed rooms and two balcony. Total built up area is 273.72m2. Thanks for downloading autocad DWG file from our cadbull website.
Uploaded by:

