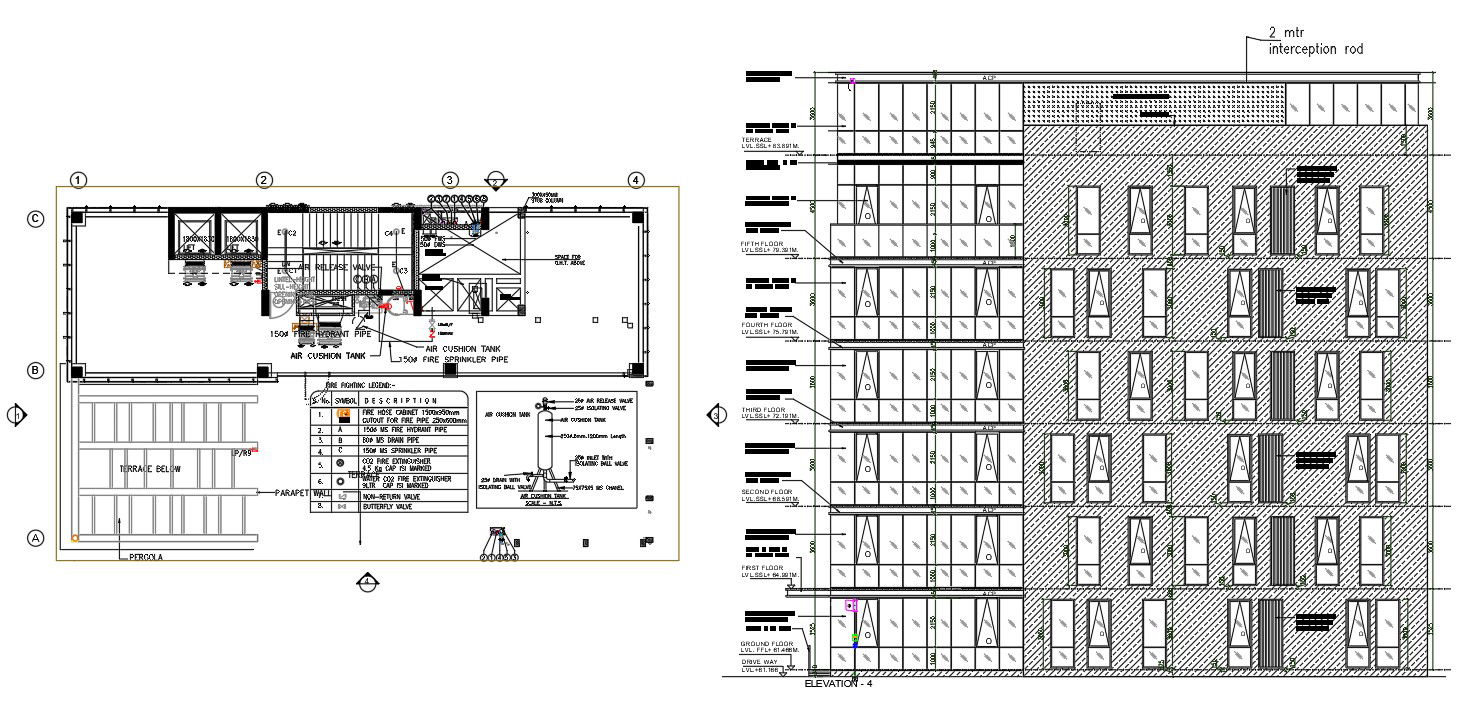
DWG drawing file shows the 2D Autocad model of fire fighting terrace plan. Download the Autocad 2D DWG file.
Description
DWG drawing file shows the 2D Autocad model of fire fighting terrace plan. Capacity of fire tank is 20000lit, domestic capacity is 20,000 lit and flushing capacity is 1000 lit. Air Relief Valve function to release air pockets that collect at each high point of a full pressured pipeline. An air release valve can open against internal pressure, because the internal lever mechanism multiplies the float force to be greater than the internal pressure. Thanks for downloading Autocad 2D drawing file and other CAD program file from our website.
File Type:
DWG
File Size:
812 KB
Category::
Structure
Sub Category::
Section Plan CAD Blocks & DWG Drawing Models
type:
Gold
Uploaded by:

