Plan and section of office building is given in the form of 2D Autocad DWG drawing file. Download the Autocad DWG drawing file.
Description
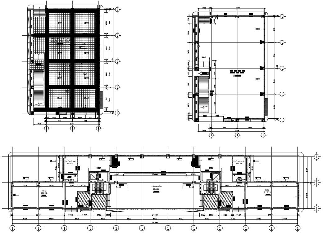
Plan and section of office building is given in the form of 2D Autocad DWG drawing file. In this building launching area, VIP rooms, warehouse, stage, Breakout area, staircase and lifts were provided. Wall painting and ceiling painting were done in this building. Wall painted finished with 20x10mm. Thanks for downloading the file and other CAD program from our website.
File Type:
DWG
File Size:
386 KB
Category::
Structure
Sub Category::
Section Plan CAD Blocks & DWG Drawing Models
type:
Free
Uploaded by:

