The DWG AutoCad 2D drawing file having the Individual villa floor plan with Basement two car park facilities(Residential Villa House Floor Plan)..Download the AutoCAD 2D DWG file.
Description
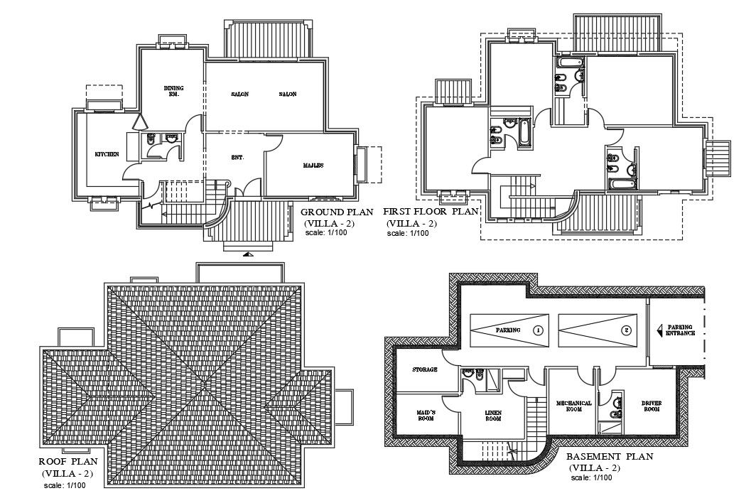
The DWG AutoCad 2D drawing file having the Individual villa floor plan with Basement two car park facilities(Residential Villa House Floor Plan). A villa is a type of house that was originally an ancient Roman upper-class country house. ... In modern parlance, "villa" can refer to various types and sizes of residences, ranging from the suburban semi-detached double villa to residences in the wildland–urban interface.Each buildup area is given clearly in this DWG file.The building plan has basement ,ground floor ,first floor plan and roof floor plan. The dimension of each floor is clearly given in this drawing file. The rooms are Family Room kitchen, bedroom with attached toilet and common toilet, store room, dinning, maid room, driver room & salon room and CAD block diagram for house is available Download the AutoCAD 2D DWG file. Thank you so much for downloading DWG file from cadbull website.
Uploaded by:

