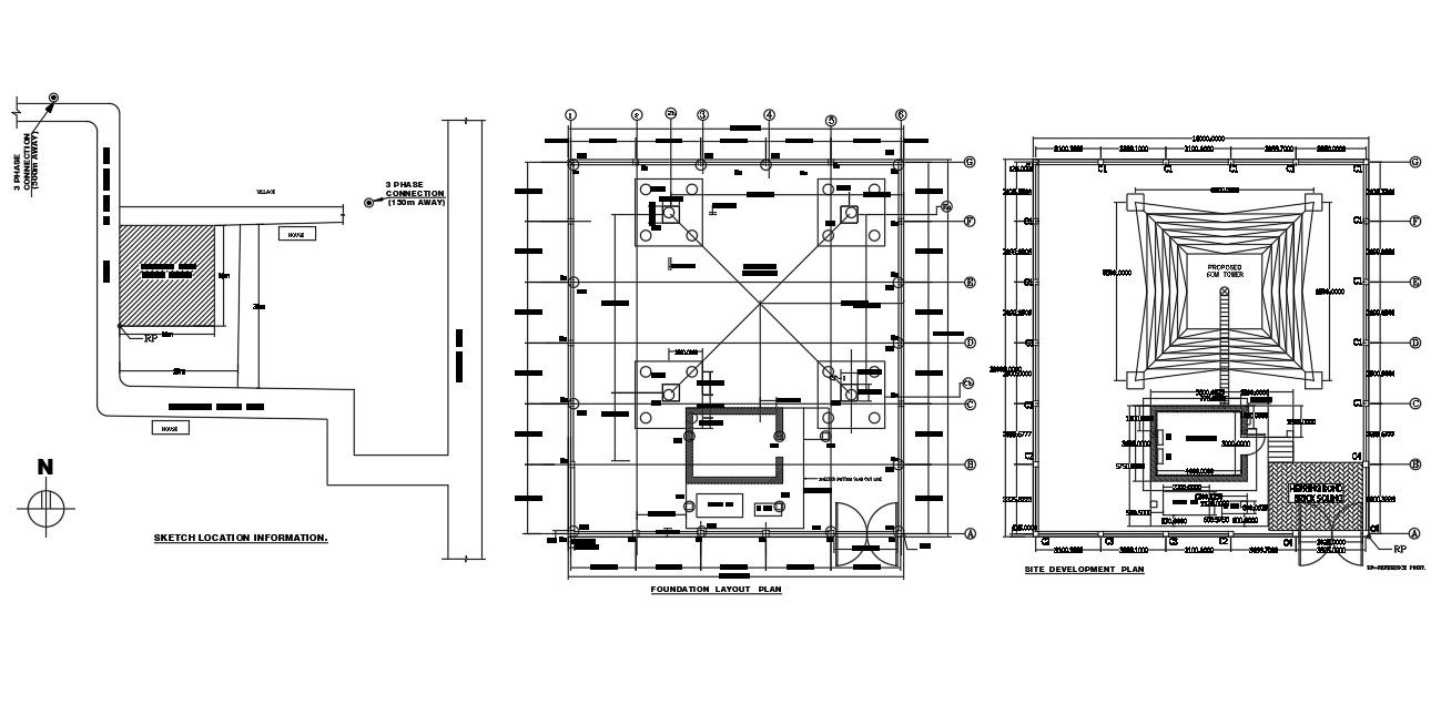
Autocad 2D drawing file shows the details of foundation layout plan and site development plan of the 60m green building tower. Download the Autocad DWG drawing file.
Description
Autocad 2D drawing file shows the details of foundation layout plan and site development plan of the 60m green building tower. In this drawing file sketch location were mentioned. Brick shelter is provided for emergency situation where you need to place to stay. Genset, fuel tanks and two AC were provided. Thank you for downloading the Autocad file and other CAD program from our cadbull website.
Uploaded by:

