Modern Hospital floor plan and terrace plan layout are given in this AutoCAD DWG file. Download the AutoCAD Drawing file.
Description
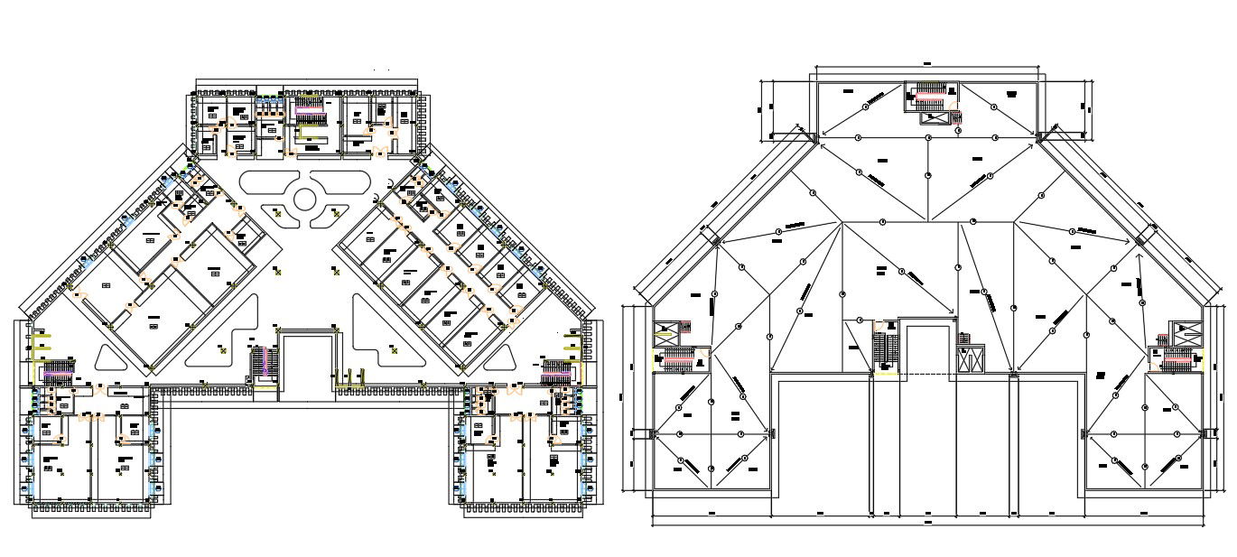
Modern Hospital floor plan and terrace plan layout are given in this AutoCAD DWG file. In this Plan, a Special AC room, a semi-private room, a Delux room, male general ward, women general ward, Doctor cabin, waiting and Reception, ICU, physiotherapy room, medical store, storeroom, bathroom, pantry, emergency room, general room, labor room, mother room, and scarab room are available. Also, the terrace area slope diagram also is given. The staircase is available inside the hospital. Download the AutoCAD Drawing file.

Uploaded by:
AS
SETHUPATHI

