20'X40' 4BHK G+1 House plan, Roof plan, and column layout are given in this AutoCAD DWG Drawing File. Download the AutoCAD Drawing file.
Description
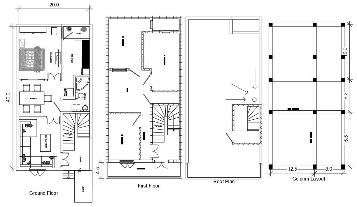
20'X40' 4BHK G+1 House plan, Roof plan, and column layout are given in this AutoCAD DWG Drawing File. In this Plan the Ground floor having a master bedroom , Common toilet, Living room, Kitchen, Dining, TV Lounge, lobby, porch, and Lawn are available. On the first floor, Master bedroom, kid's bedroom, Guest bedroom, Common toilet, and living room are available. The staircase is available inside the house. The roof plan and the column layout also is given in this drawing. Download the AutoCAD Drawing file.

Uploaded by:
AS
SETHUPATHI
