Autocad 2D DWG drawing file shows the details of Floor plan of the hospital building. Download the Auotcad 2D DWG drawing file.
Description
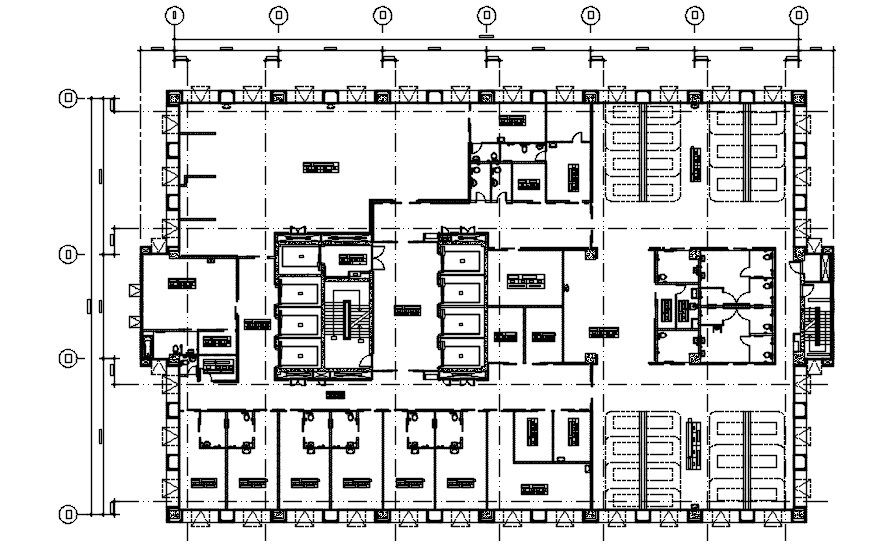
Autocad 2D DWG drawing file shows the details of Floor plan of the hospital building. Emergency ward, scan room, doctor consult room for each department, ramp for patients, stairs, toilets for male and female, patients bed rooms and lift lobby were provided in this floor. Thank you for downloading the autocad file and other cad program files from our cadbull website.
Uploaded by:

