The file shows the details of the section of lavatory and water closets were given in this drawing file. Download the Autocad DWG drawing file.
Description
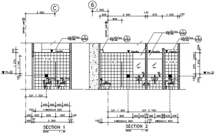
The file shows the details of the section of lavatory and water closets were given in this drawing file. Measurements are given in the diagram and all dimensions are in mm. Water closets given with the pipe line. Download the Autocad drawing file. Thank you for downloading the autocad file and other CAD program from the our cadbull website.
File Type:
DWG
File Size:
264 KB
Category::
Structure
Sub Category::
Section Plan CAD Blocks & DWG Drawing Models
type:
Gold
Uploaded by:

