Section details of the hospital building toilet is given in this Autocad drawing model and layout. Download the Autocad DWG drawing file.
Description
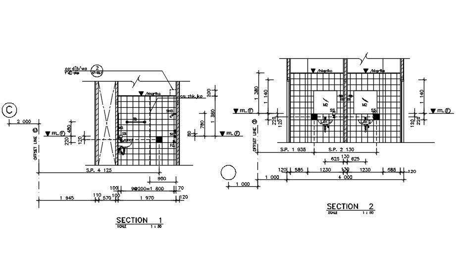
Section details of the hospital building toilet is given in this Autocad drawing model and layout. At section 1 one lavatory were provided. At section 2 there are two lavatory are provided. The measurements were given in the drawing with dimensions in mm. Download the Autocad DWG drawing file. Thank you for downloading the Autocad file and other program file from our website.
Uploaded by:

