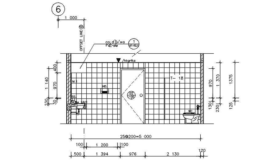
Front section of toilet (Hospital Building) is given form of 2D Autocad DWG drawing file. Download the Autocad DWG drawing file.
Description
Front section of toilet (Hospital Building) is given form of 2D Autocad DWG drawing file. In this drawing file water closets, lavatory and shower were mentioned. Door openings are given in the inside direction. Thank you for downloading the Autocad file and other program file from our website.
Uploaded by:

