G+1 House section details are given in this AutoCAD DWG Drawing File.Download the AutoCAD Drawing file.
Description
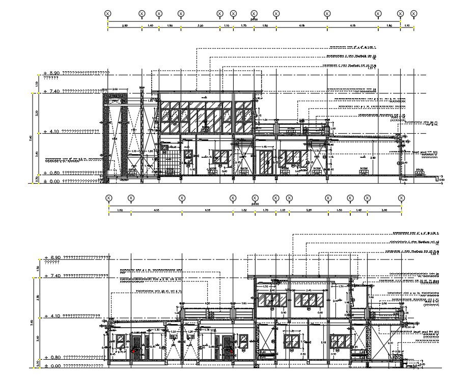
G+1 House section details are given in this AutoCAD DWG Drawing File. In this Plan the Ground floor having a master bedroom, Common toilet, Living room, Kitchen, Dining, TV Lounge, lobby, porch, and Lawn are available. On the first floor, Master bedroom, Common toilet, and living room are available. The staircase is available inside the house. The Beautiful side section details are given in this drawing. The door and windows are shown in this drawing. Download the AutoCAD Drawing file.
File Type:
DWG
File Size:
324 KB
Category::
Structure
Sub Category::
Section Plan CAD Blocks & DWG Drawing Models
type:
Free

Uploaded by:
AS
SETHUPATHI

