Hotel building basement kitchen and interior DWG AutoCAD file
Description
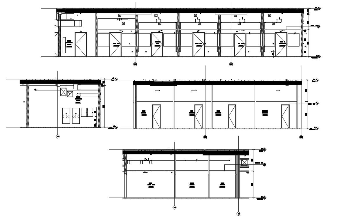
This 2D AutoCAD DWG file provides detailed layouts and elevations of a hotel building’s basement kitchen and interior spaces. It includes precise room layouts, furniture placements, kitchen equipment, and interior elevations. Architects, interior designers, and CAD users can use this file for accurate planning, visualization, and design documentation. The file is fully compatible with AutoCAD, making it easy to modify and integrate into broader architectural projects. Ideal for professional design and construction purposes.
Uploaded by:

