Block out for basement floor details of the hospital building is given in this 2D Autocad DWG drawing file. Download the Autocad DWG drawing file.
Description
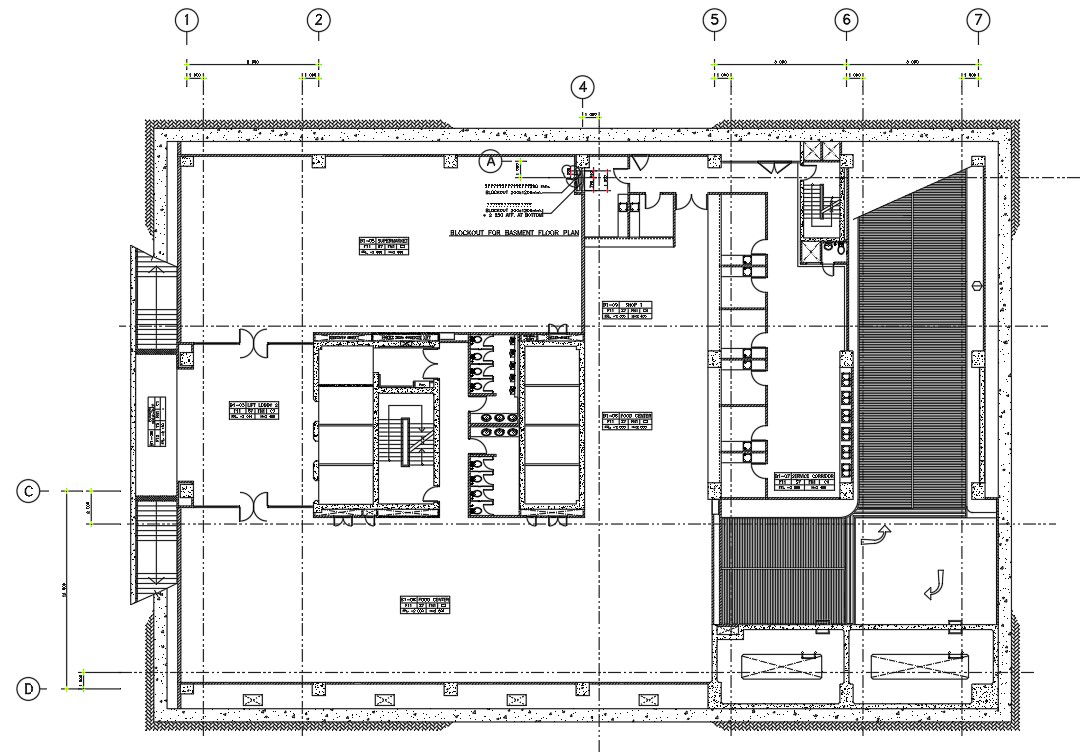
Block out for basement floor details of the hospital building is given in this 2D Autocad DWG drawing file. Food centre, sunken walk way, lift lobby 1 & 2, shop 1, service corridor, super market, and stairs are available at this basement. Doors, toilets for male and female, lavatory and closets are specified here. Thank you for downloading the Autocad file and other cad program files from our cadbull website.
Uploaded by:

