Cross section details of the wall extended model of wall (Hospital building) is given in the form of 2D Autocad DWG drawing file. Download the Autocad DWG drawing file.
Description
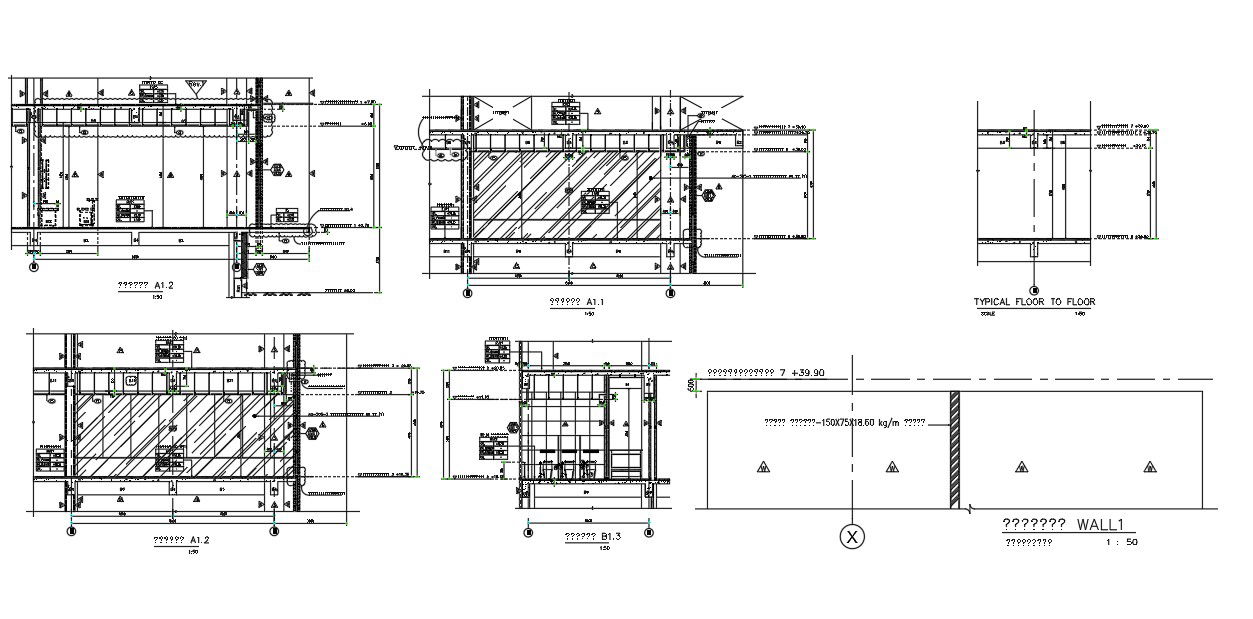
Cross section details of the wall extended model of wall (Hospital building) is given in the form of 2D Autocad DWG drawing file. Section A1.1, A1.2, and section B1.3 are given clearly in this drawing file. Typical floor to floor has given in this diagram. Dimensions are given in mm. Download the Autocad DWG drawing file. Thank you for downloading the Autocad file and other cad program files from our cadbull website.
Uploaded by:

