Section details of the toilet room are given in this 2D Autocad DWG drawing file. Download the Autocad DWG drawing file.
Description
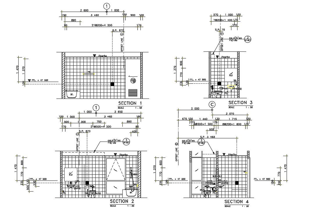
Section details of the toilet room are given in this 2D Autocad DWG drawing file. There are four toilet rooms are provided in this drawing. washbasin, bathtub, western toilet, and shower block are given. Dimensions like length, breadth, and depth were given clearly. Download the Autocad DWG drawing file. Thank you for downloading the Autocad file and other program files from our website.

Uploaded by:
AS
SETHUPATHI

