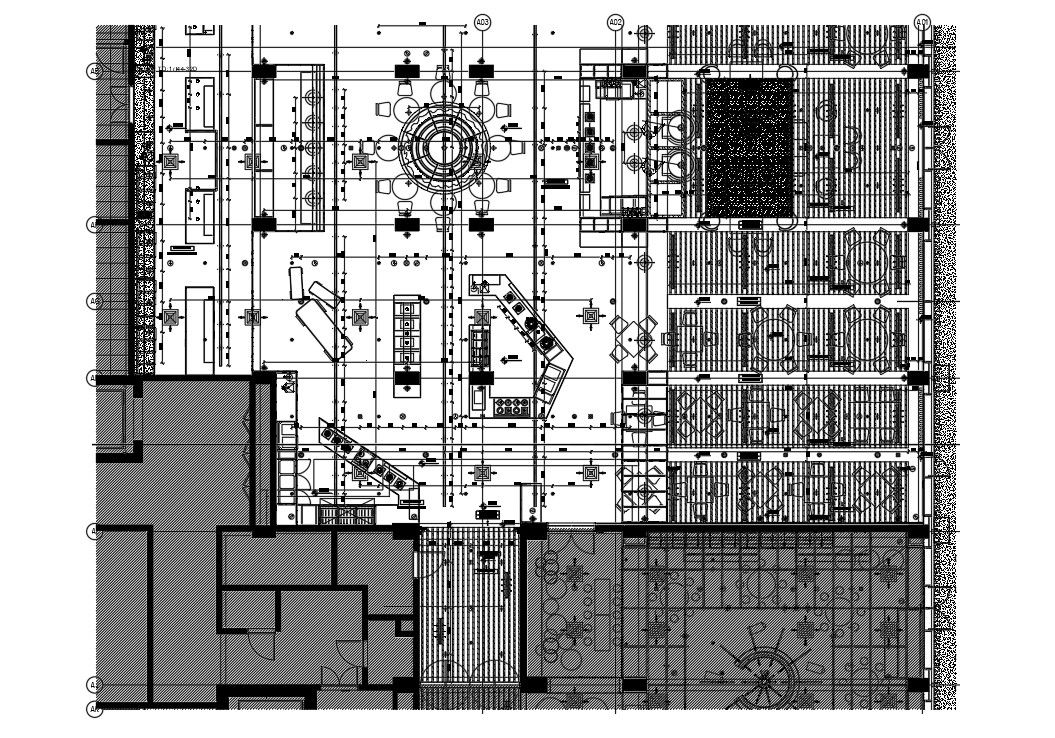
Autocad 2D DWG drawing file shows the details of reflected ceiling of the hotel and resort plan. Download the Autocad 2D DWG drawing file.
Description
Autocad 2D DWG drawing file shows the details of reflected ceiling of the hotel and resort plan. A Reflected Ceiling Plan is a type of architectural drawing, where the plan of a ceiling gets projected on a flat plane placed directly below, displaying the orientation of various electrical or mechanical objects within the ceiling.” Thank you for downloading the autocad 2D DWG drawing file and other CAD program files from our website.
Uploaded by:

