Joinery and furniture details of hotel and resort plan is given in this 2D CAD DWG drawing file. Download the Autocad DWG drawing file.
Description
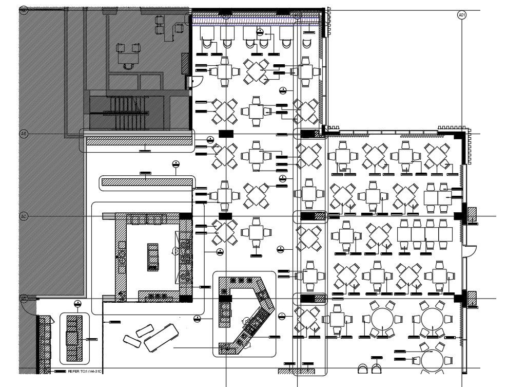
Joinery and furniture details of hotel and resort plan is given in this 2D CAD DWG drawing file. The name of the hotel is all day dinning. Required furniture’s are provided at this floor. Furniture’s like dinning sets, buffet sets and light setting etc., Thank you for downloading the autocad 2D DWG drawing file and other CAD program files from our website.
Uploaded by:

