AutoCAD DWG Architectural Drawing file having the details of the Hotel room floor plan with the attached toilet and the furniture design. Download the AutoCAD 2D DWG file.
Description
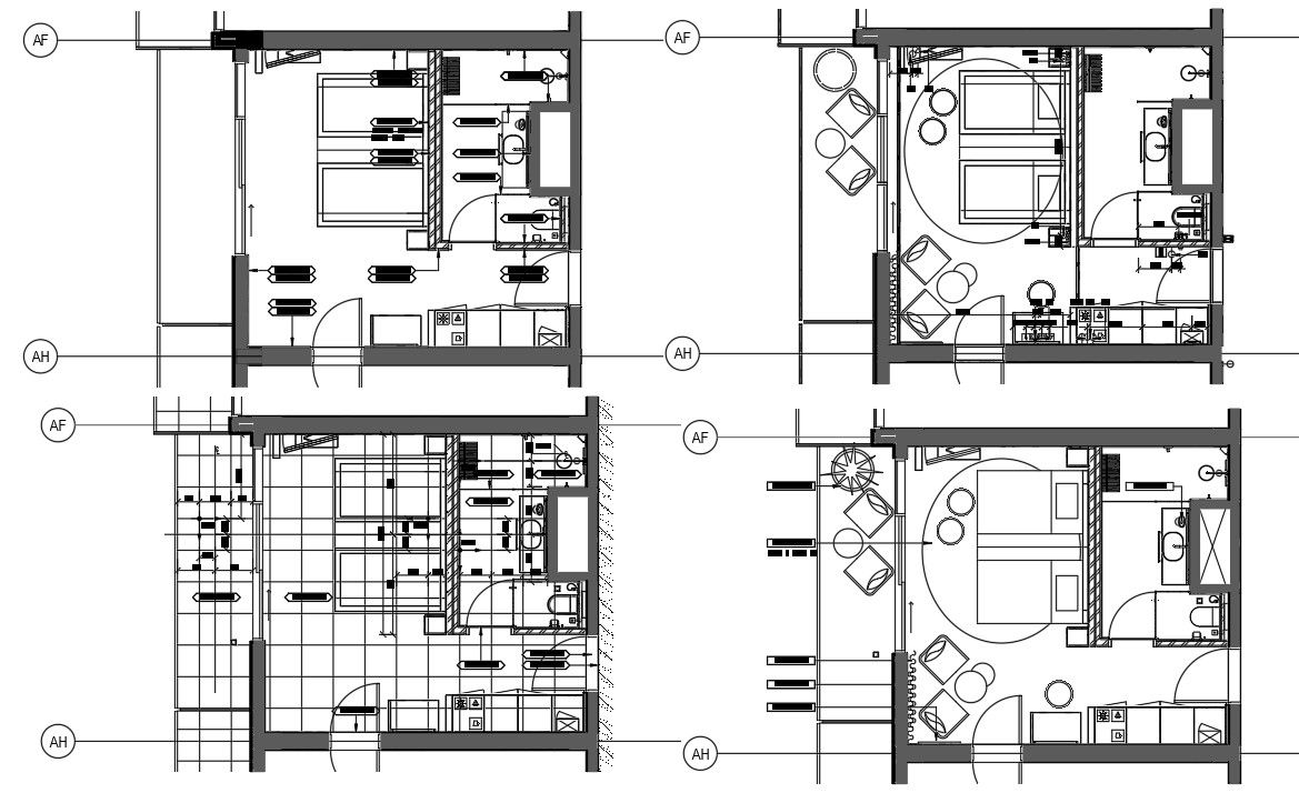
AutoCAD DWG Architectural Drawing file having the details of the Hotel room floor plan with the attached toilet and the furniture design. Sectional details are clearly given in this drawing file. The hotel Layout plan shows a room, beds and furniture, western toilet block, toilet, and washbasin in this DWG file. A total of four rooms are available with toilets. Download the AutoCAD 2D DWG file. Thank you so much for downloading the DWG file from our website.

Uploaded by:
AS
SETHUPATHI

