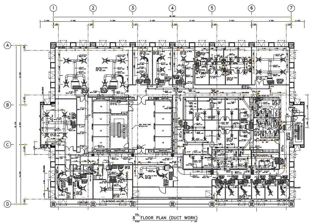
2D CAD file shows the details of duct work in hospital building. Download the Autocad DWG drawing file.

2D CAD file shows the details of duct work in hospital building.  Download the Autocad DWG drawing file.
Profile

Uploaded by:

Marvel

Description
2D CAD file shows the details of duct work in hospital building. Ducts are conduits or passages used in heating, ventilation, and air conditioning (HVAC) to deliver and remove air. The needed airflows include, for example, supply air, return air, and exhaust air. Ducts commonly also deliver ventilation air as part of the supply air. Thank you for downloading the Autocad 2D DWG drawing file and other CAD program files from our cadbull website.
Profile

Uploaded by:

Marvel

find Latest

Related Files

WhatsApp Chat