East, North, and south direction Elevation details of the chalet building are given in this AutoCAD DWG 2D Drawing File. Download now.
Description
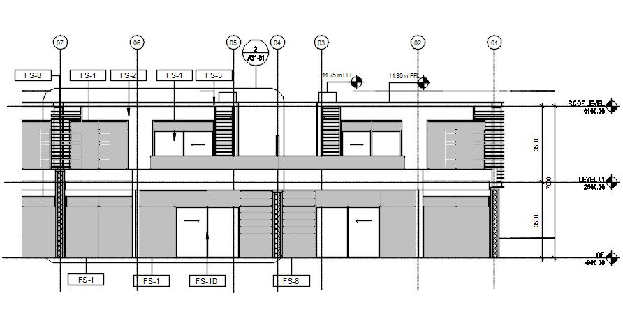
East, North, and south direction Elevation details of the chalet building are given in this AutoCAD DWG 2D Drawing File. In this file, the Grill design, staircase, door, and windows were clearly shown. The section details were also are given clearly in this drawing. Download the AutoCAD DWG file now. Thanks for downloading the file and another CAD program from our website.
File Type:
DWG
File Size:
138 KB
Category::
Structure
Sub Category::
Section Plan CAD Blocks & DWG Drawing Models
type:
Free

Uploaded by:
AS
SETHUPATHI
