AutoCAD DWG 2D Drawing File having the details of the Wall section. Download the AutoCAD DWG file now.
Description
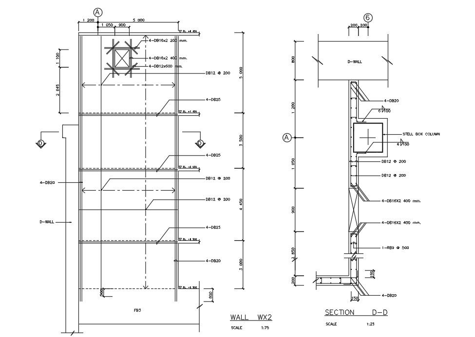
AutoCAD DWG 2D Drawing File having the details of the Wall section. In this file, the door, window, and wall sectional details were neatly shown. The section detail and the dimension were also are given clearly in this drawing. Download the AutoCAD DWG file now. Thanks for downloading the file and another CAD program from the cadbull.com website.
File Type:
DWG
File Size:
138 KB
Category::
Structure
Sub Category::
Section Plan CAD Blocks & DWG Drawing Models
type:
Gold

Uploaded by:
AS
SETHUPATHI
