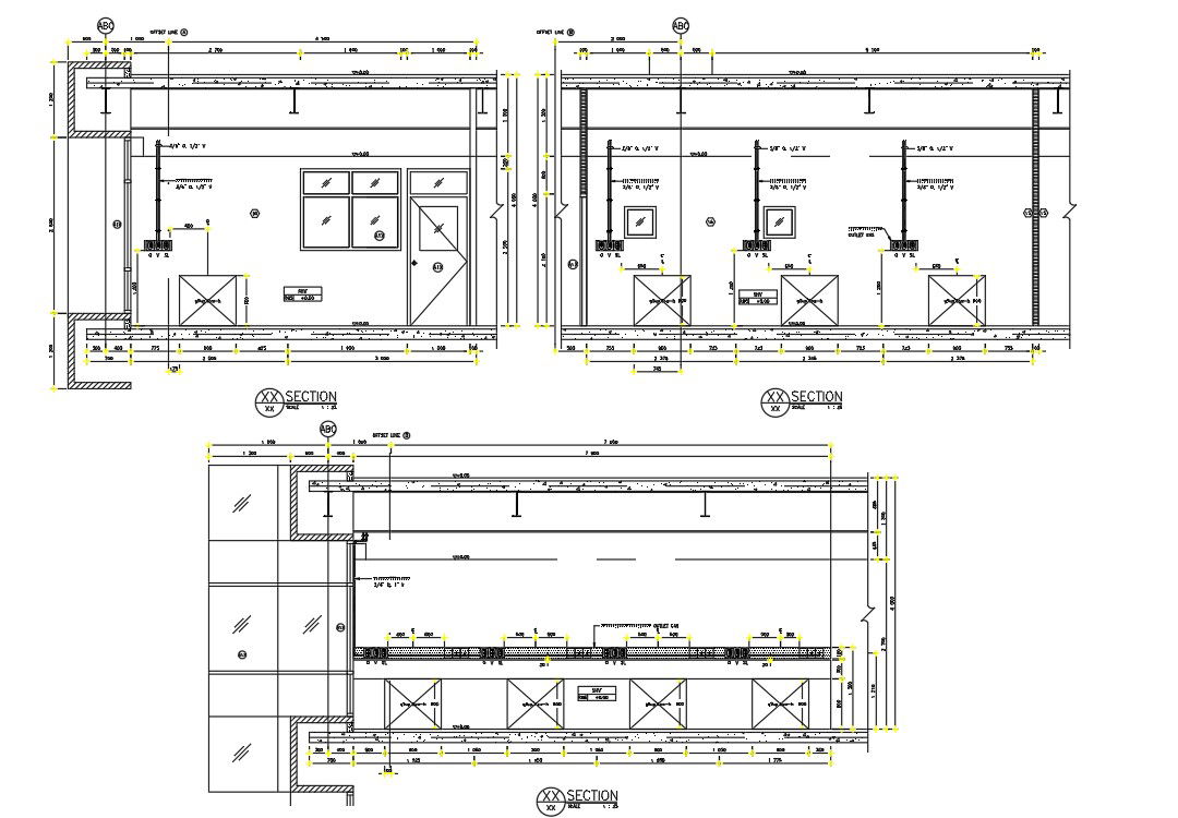
Details of typical outlet gas is given in the 2D Autocad DWG drawing file. Section of outlet gas details are given. Download the Autocad DWG drawing file.
Description
Details of typical outlet gas is given in the 2D Autocad DWG drawing file. Section of outlet gas details are given. Measurements are given in the section 1, 2 and 3. For more details download the autocad dwg drawing file. Thank you for downloading the 2D Autocad file and other cad files from our website.
Uploaded by:

