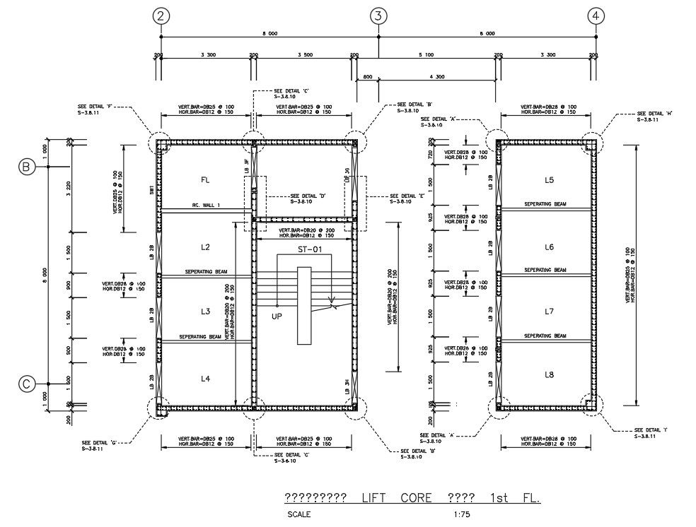
The CAD DWG Drawing, the lift core details, and First-floor reinforcement details are given. Download the AutoCAD DWG file now.
Description
The CAD DWG Drawing, the lift core details, and First-floor reinforcement details are given. In this file, separating beam, Staircase, steel bar reinforcement, and wall sectional details were neatly shown. The section detail and the dimension were also are given clearly in this drawing. Download the AutoCAD DWG file now. Thanks for downloading the file and another CAD program from the cadbull.com website.
File Type:
DWG
File Size:
191 KB
Category::
Structure
Sub Category::
Section Plan CAD Blocks & DWG Drawing Models
type:
Gold

Uploaded by:
AS
SETHUPATHI

