Joint beam and column Reinforcement section details are given in this AutoCAD DWG file.Download the AutoCAD 2D DWG file now.
Description
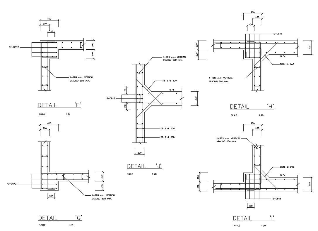
Joint beam and column Reinforcement section details are given in this AutoCAD DWG file. In this file, beam, column, steel bar reinforcement, and wall sectional details were neatly shown. The section detail and the dimension were also are given clearly in this drawing. Download the AutoCAD 2D DWG file now. Thanks for downloading the file and another CAD program from the cadbull.com website.
File Type:
DWG
File Size:
141 KB
Category::
Structure
Sub Category::
Section Plan CAD Blocks & DWG Drawing Models
type:
Gold

Uploaded by:
AS
SETHUPATHI

