Gym building floor plan designs are given on this AutoCAD DWG Drawing File. Download AutoCAD DWG File.
Description
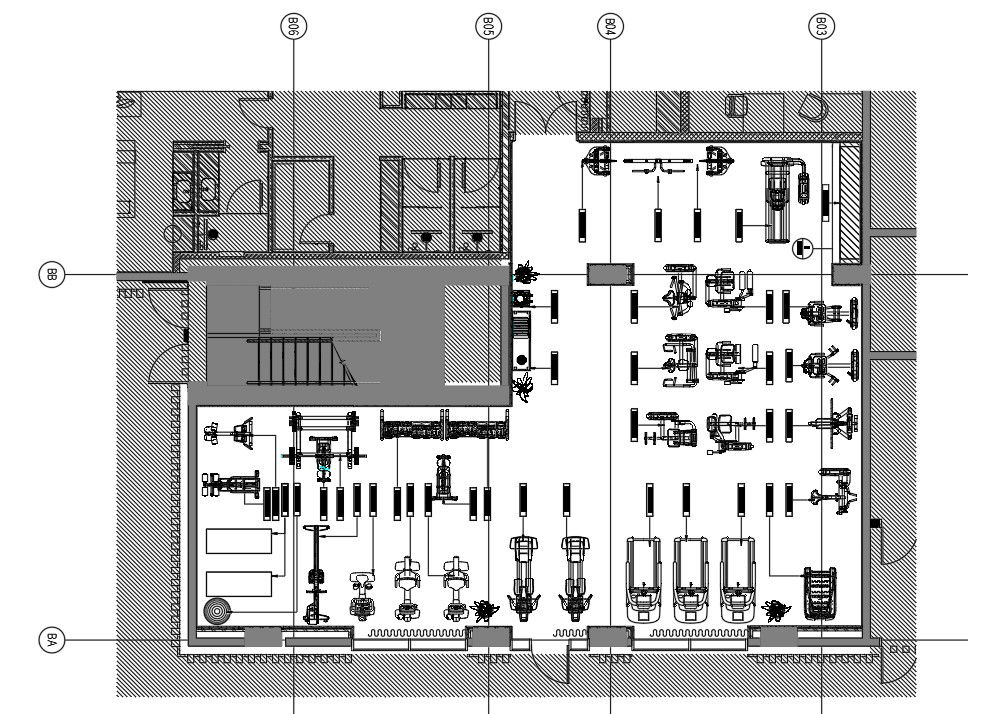
Gym building floor plan designs are given on this AutoCAD DWG Drawing File. On this ground floor, gym machine blocks are given in this drawing file. section details also are given in this drawing file. Download AutoCAD DWG File.Thank you so much for downloading the DWG file from our website.

Uploaded by:
AS
SETHUPATHI

