Proposed pile cap section details are given in this AutoCAD 2D DWG Drawing File. Download the AutoCAD 2D DWG file.
Description
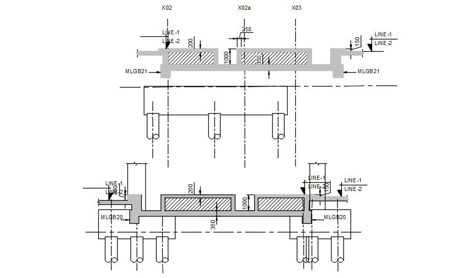
Proposed pile cap section details are given in this AutoCAD 2D DWG Drawing File. Pile cap section details and Encav chamber wall is mentioned.sectional details are given clearly in this drawing file. Download the AutoCAD 2D DWG file. Thank you so much for downloading the DWG file from the cadbull website.
File Type:
DWG
File Size:
7.1 MB
Category::
Structure
Sub Category::
Section Plan CAD Blocks & DWG Drawing Models
type:
Gold

Uploaded by:
AS
SETHUPATHI

