Section details of the pile cap are given in this AutoCAD 2D Drawing file. Download the AutoCAD 2D DWG file.
Description
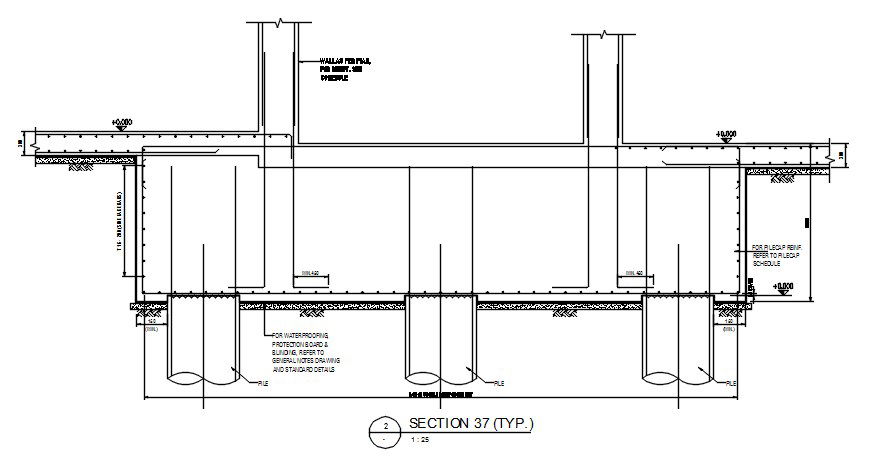
The pile cap section details are given in this AutoCAD 2D Drawing file. waterproofing protection board and blinding are mentioned. sectional details are given clearly. Download the AutoCAD 2D DWG file. Thank you so much for downloading the DWG file from the cadbull website.
File Type:
DWG
File Size:
344 KB
Category::
Structure
Sub Category::
Section Plan CAD Blocks & DWG Drawing Models
type:
Free

Uploaded by:
AS
SETHUPATHI

