The reinforcement details of the pile cap section are given in this AutoCAD 2D Drawing file.Download the AutoCAD 2D DWG file
Description
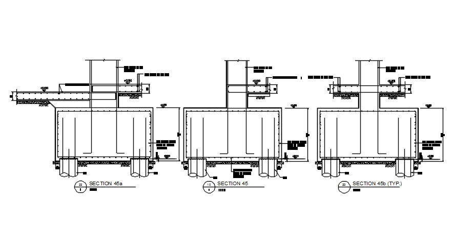
The reinforcement details of the pile cap section are given in this AutoCAD 2D Drawing file. slab reinforcement as per plan and pile cap is mentioned. sectional details are given clearly. Download the AutoCAD 2D DWG file. Thank you so much for downloading the DWG file from the cadbull website.
File Type:
DWG
File Size:
356 KB
Category::
Structure
Sub Category::
Section Plan CAD Blocks & DWG Drawing Models
type:
Gold

Uploaded by:
AS
SETHUPATHI

