Reinforcement Layout details and plans at the plinth level are given in this AutoCAD 2D Drawing file. Download the free AutoCAD file.
Description
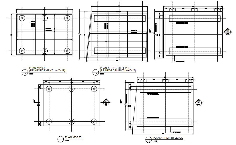
Reinforcement Layout details and plans at the plinth level are given in this AutoCAD 2D Drawing file. column and reinforcement details are mentioned. sectional details are given clearly. Download the free AutoCAD file. Thank you so much for downloading the DWG file from the cadbull website.
File Type:
DWG
File Size:
193 KB
Category::
Structure
Sub Category::
Section Plan CAD Blocks & DWG Drawing Models
type:
Free

Uploaded by:
AS
SETHUPATHI

