Hotel Furniture Floor Plan DWG File for AutoCAD Download

Hotel Furniture Floor Plan DWG File for AutoCAD Download
Profile

Uploaded by:

AS

SETHUPATHI

Description
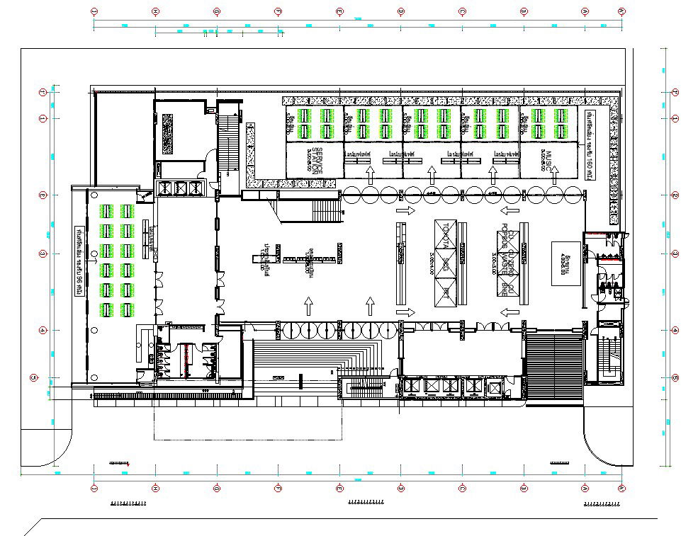
The Hotel furniture floor plan is given in this AutoCAD DWG file. In this file, The interior design of the restaurant and dining setup, reception , the kitchen was neatly shown. The floor plan and the section detail of the restaurant were also being shown clearly in this drawing. Download the AutoCAD 2D Drawing file now. Thanks for downloading the AutoCAD file and another CAD program from the cadbull website.
Profile

Uploaded by:

AS

SETHUPATHI

find Latest

Related Files

WhatsApp Chat