The Hotel floor plan with furniture is given in this AutoCAD DWG file.Download the AutoCAD 2D Drawing file now.
Description
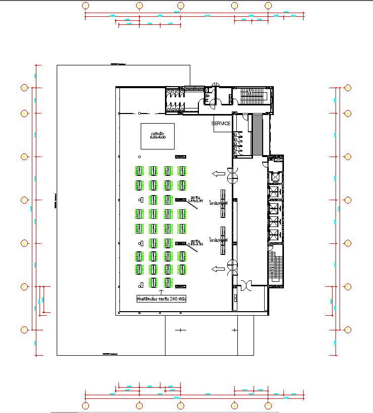
The Hotel floor plan with furniture is given in this AutoCAD DWG file. In this file, The interior design of the restaurant and dining setup, toilet and service room was neatly shown. The floor plan and the section detail of the restaurant were also being shown clearly in this drawing. Download the AutoCAD 2D Drawing file now. Thanks for downloading the AutoCAD file and another CAD program from the cadbull website.

Uploaded by:
AS
SETHUPATHI

