Staircase typical section details are given in this AutoCAD drawing file.Download the AutoCAD file now.
Description
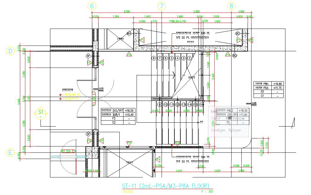
Staircase typical section details are given in this AutoCAD drawing file. In this file, the Staircase sectional details, and landing details, reinforcement concrete were clearly shown. The dimension and section detail was also are given clearly in this drawing. A total of sixteen steps are available in this staircase. Download the AutoCAD file now. Thanks for downloading the file and another CAD program from the cadbull.com website.
File Type:
DWG
File Size:
488 KB
Category::
Structure
Sub Category::
Section Plan CAD Blocks & DWG Drawing Models
type:
Gold

Uploaded by:
AS
SETHUPATHI
