AutoCAD DWG drawing having the details of the Ground floor sanitary layout section is provided. Download the AutoCAD free 2D DWG file.
Description
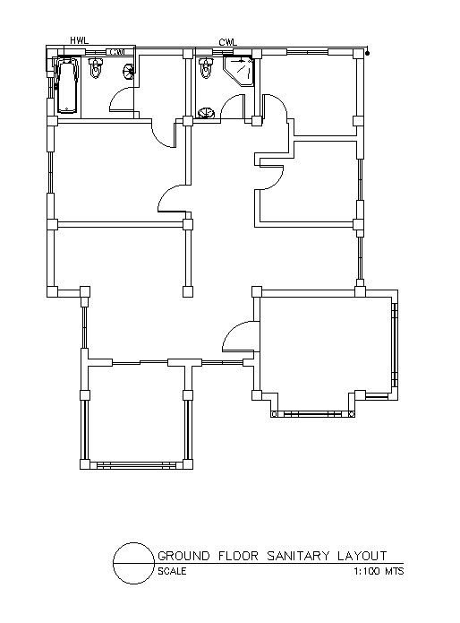
AutoCAD DWG drawing having the details of the Ground floor sanitary layout section is provided. Sectional details and the dimensions are clearly given in this drawing file. Also, the water line for water closet, lavatory, and sink shall be provided with angle valve are mentioned in this DWG file. Download the AutoCAD free 2D DWG file. Thank you so much for downloading DWG file from our website
File Type:
DWG
File Size:
2.1 MB
Category::
Structure
Sub Category::
Section Plan CAD Blocks & DWG Drawing Models
type:
Gold

Uploaded by:
AS
SETHUPATHI
