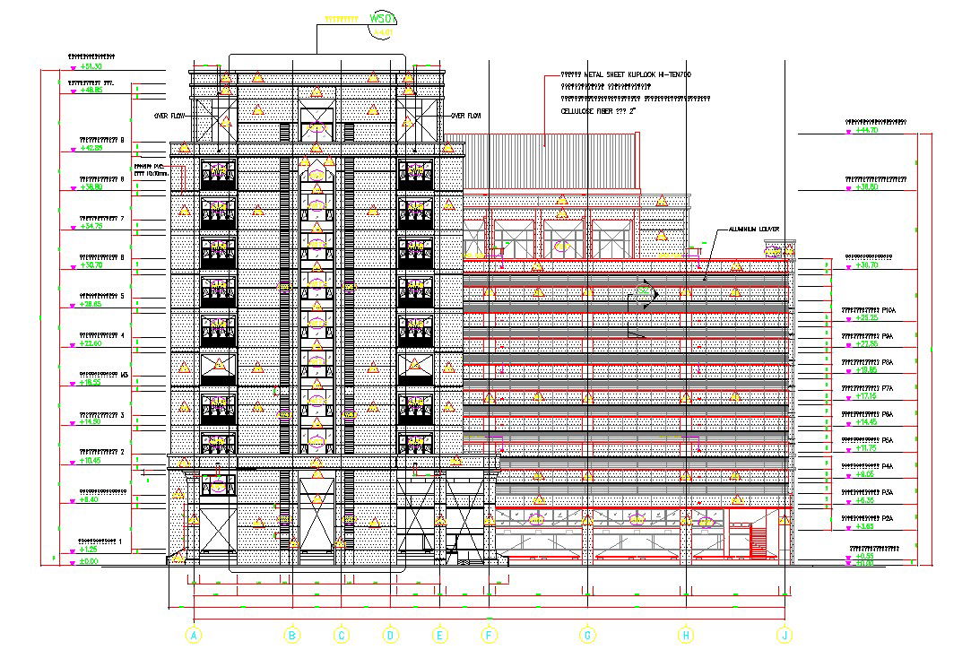
G+9 Apartment building side view section details are given in this 2D AutoCAD DWG Drawing. Download the AutoCAD file now.
Description
G+9 Apartment building side view section details are given in this 2D AutoCAD DWG Drawing. In this file, the side view of the Apartment building was neatly shown. The terrace room, overflow, and the height of the building were also are shown clearly in this drawing. Download the AutoCAD file now. Thanks for downloading the AutoCAD file and another CAD program from the cadbull website.
File Type:
DWG
File Size:
745 KB
Category::
Structure
Sub Category::
Section Plan CAD Blocks & DWG Drawing Models
type:
Gold

Uploaded by:
AS
SETHUPATHI

