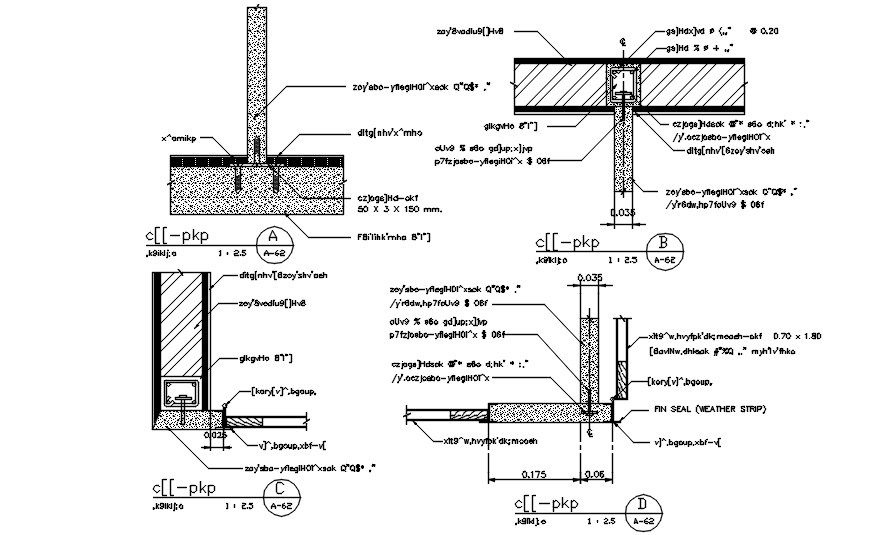
Typical beam-column detailed sections are given in this AutoCAD DWG file. Download the AutoCAD 2D DWG file.
Description
Typical beam-column detailed sections are given in this AutoCAD DWG file. Sectional details and the dimensions are clearly given in this drawing file. This drawing file is useful for civil engineers. Download the AutoCAD 2D DWG file. Thank you so much for downloading the DWG file from our website.
File Type:
DWG
File Size:
660 KB
Category::
Structure
Sub Category::
Section Plan CAD Blocks & DWG Drawing Models
type:
Free

Uploaded by:
AS
SETHUPATHI

