Glass window section and elevation details are provided in this AutoCAD 2D DWG drawing file. Download the AutoCAD free 2D DWG file.
Description
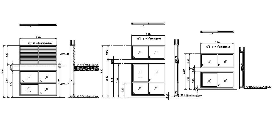
Glass window section and elevation details are provided in this AutoCAD 2D DWG drawing file. In this drawing file, a single window, double door, Glassdoor, double window, Sectional details, and the dimensions are clearly given in this drawing file. Download the AutoCAD free 2D DWG file. Thank you so much for downloading DWG file from our website
File Type:
DWG
File Size:
78 KB
Category::
Dwg Cad Blocks
Sub Category::
Windows And Doors Dwg Blocks
type:
Free

Uploaded by:
AS
SETHUPATHI

