39'X26' North facing single bhk house plan as per Vastu Shastra.Download Autocad DWG and PDF file.
Description
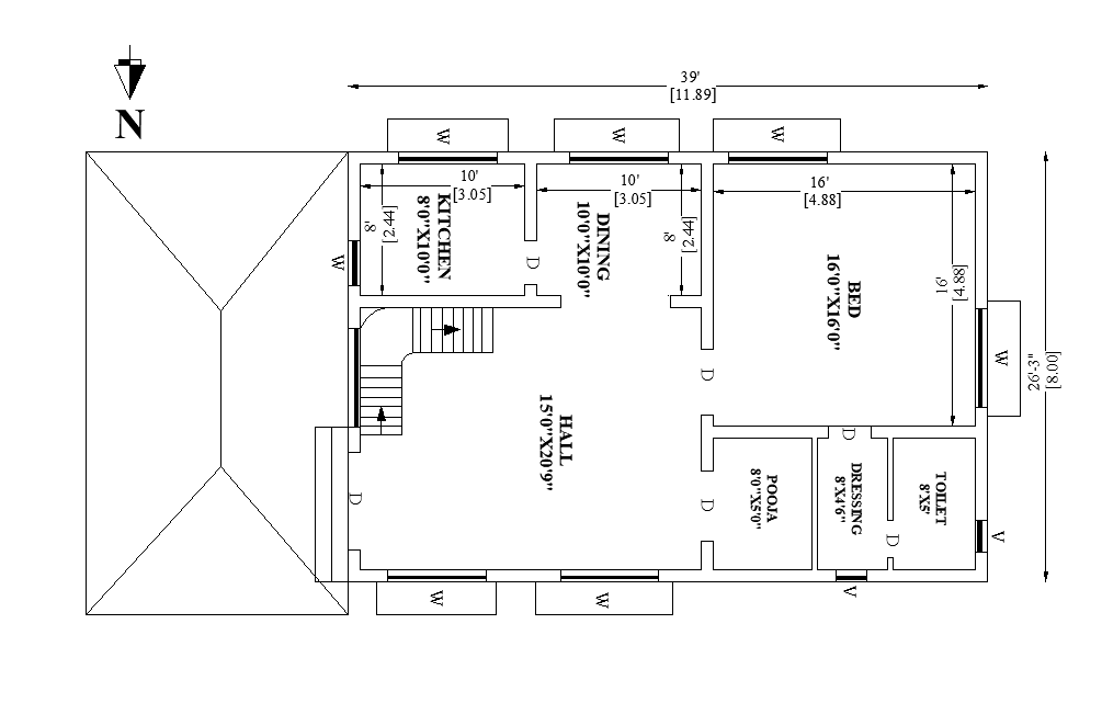
39'X26' North facing single bhk house plan as per Vastu Shastra. The master bedroom is in the southwest direction with the attached toilet in the northwest. The dressing room near the toilet is in the north. kitchen is placed in the southeast. Dining is near the kitchen is in the south. Hall and portico are available in the northeast direction. Puja room available in the west direction. The staircase is placed in the east direction inside of the house. Download Autocad DWG and PDF file.

Uploaded by:
AS
SETHUPATHI

