Commercial plans are given in this AutoCAD 2D DWG drawing file. Download the AutoCAD DWG file.
Description
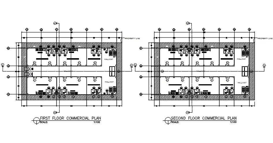
Commercial plans are given in this AutoCAD 2D DWG drawing file. In this drawing file, Commercial plans of the first and second floors are clearly given in this drawing file. Download the AutoCAD DWG file. Thank you so much for downloading DWG file from our website

Uploaded by:
AS
SETHUPATHI

