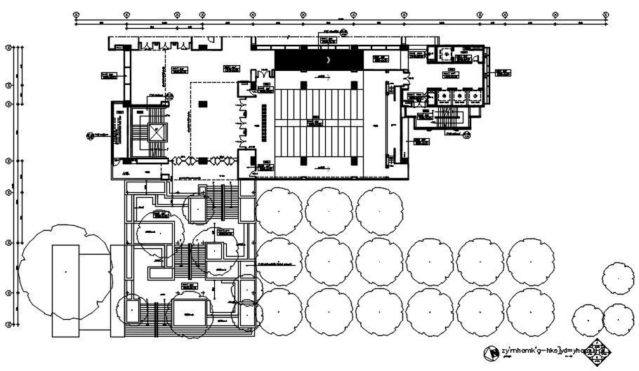
Hotel building floor plan, garden, and typical section details are given in this AutoCAD DWG drawing.Download the AutoCAD 2D DWG file.
Description
Hotel building floor plan, garden, and typical section details are given in this AutoCAD DWG drawing. Sectional details are clearly given in this drawing file. Hotel building floor plan and section details are given in this DWG file. Download the AutoCAD 2D DWG file. Thank you so much for downloading DWG file from our website

Uploaded by:
AS
SETHUPATHI

