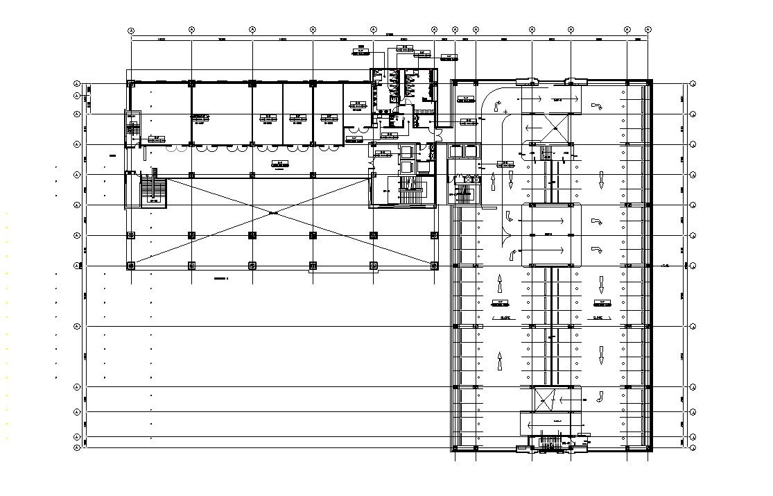
The office building floor plan and car parking typical section details are given in this AutoCAD DWG drawing.Download the AutoCAD 2D DWG file.
Description
The office building floor plan and car parking typical section details are given in this AutoCAD DWG drawing. Sectional details are clearly given in this drawing file. office building column plan and section details are given in this DWG file. Download the AutoCAD 2D DWG file. Thank you so much for downloading DWG file from our website
File Type:
DWG
File Size:
953 KB
Category::
Structure
Sub Category::
Section Plan CAD Blocks & DWG Drawing Models
type:
Gold

Uploaded by:
AS
SETHUPATHI

