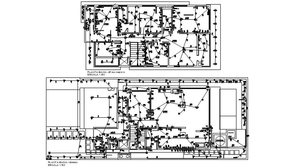
G+1 House Electrical drawing AutoCAD Drawing is given. Download the AutoCAD drawing file.
Description
G+1 House Electrical drawing AutoCAD Drawing is given. This drawing file contains Electrical drawing designs. These blocks will be useful for civil engineers, architects, and interior designers. Download the AutoCAD drawing file. Thank you so much for Downloading the AutoCAD DWG 2d files from our website.

Uploaded by:
AS
SETHUPATHI

