Side elevation of G+1 House is given in this AutoCAD DWG drawing.Download the AutoCAD 2D DWG file.
Description
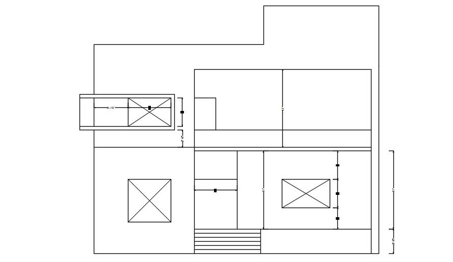
Side elevation of G+1 House is given in this AutoCAD DWG drawing. Sectional details and dimensions of the house elevation diagram are clearly given in this drawing file. Download the AutoCAD 2D DWG file. Thank you so much for downloading the DWG file from the cadbull website.
File Type:
DWG
File Size:
135 KB
Category::
Structure
Sub Category::
Section Plan CAD Blocks & DWG Drawing Models
type:
Gold

Uploaded by:
AS
SETHUPATHI

