11'X 29' shop building floor plan is given in this AutoCAD DWG file.Download 2D Autocad Drawing DWG and PDF file.
Description
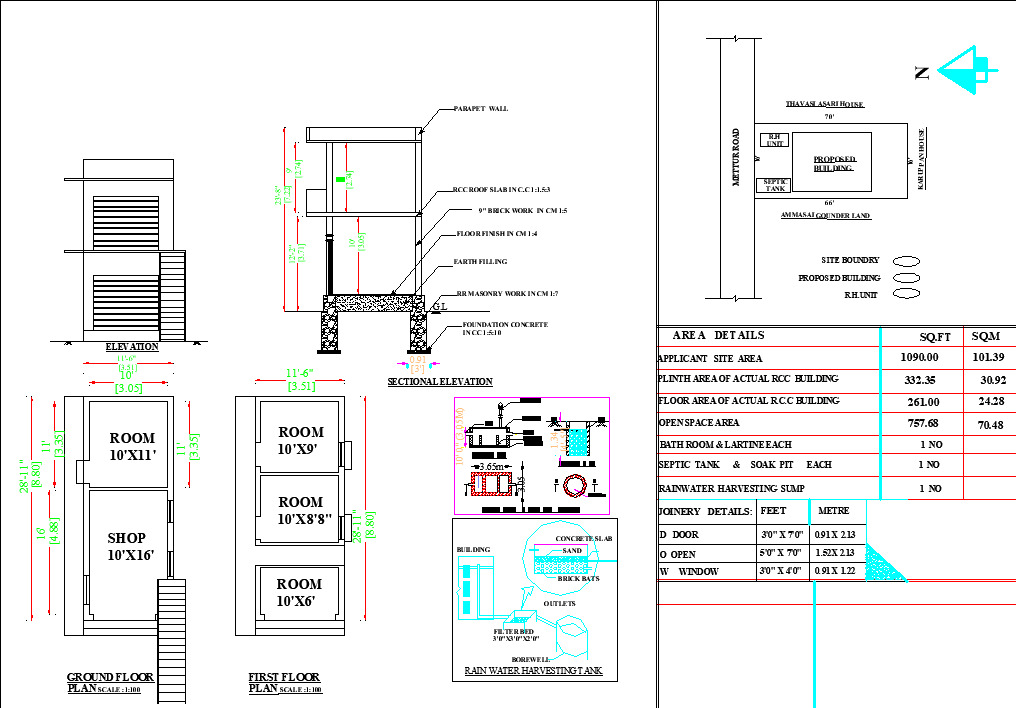
11'X 29' shop building floor plan is given in this AutoCAD DWG file. A total of five shops are available in this drawing. each shop having different room sizes. The staircase is also available at the entrance of the building. Typical sections and Elevation details of this house plan are given. Also, Door and window joinery details and area details are clearly mentioned in this drawing. Download 2D Autocad Drawing DWG and PDF file.

Uploaded by:
AS
SETHUPATHI

