Joinery staircase typical side section details are given in this CAD 2d Drawing File.Download the AutoCAD file now.
Description
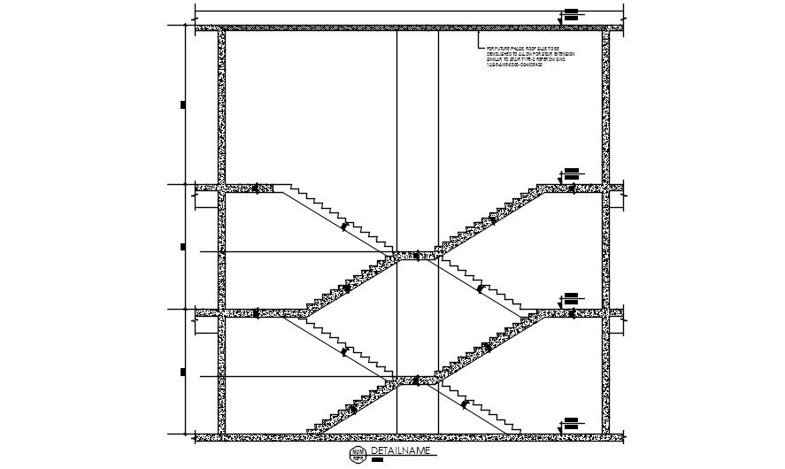
Joinery staircase typical side section details are given in this CAD 2d Drawing File. In this file, precast mid landing design detail, duct, RC wall, the Staircase detailed sectional details were clearly given. The side elevation of the staircase is given in detail. The section detail and the dimension were also are given clearly in this drawing. Download the AutoCAD file now. Thanks for downloading the file and another CAD program from the cadbull.com website.

Uploaded by:
AS
SETHUPATHI

