Ramp or stair Extension detail are provided in this AutoCAD DWG Drawing File.Download the AutoCAD file now.
Description
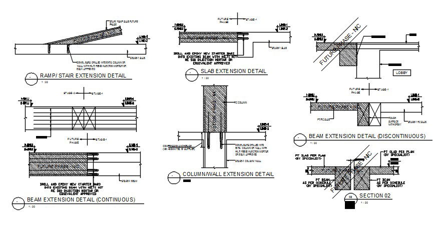
Ramp or stair Extension detail are provided in this AutoCAD DWG Drawing File. In this file, Ramp or stair extension detail, slab extension detail, beam extension detail, column or wall extension detail, and sectional details were clearly given. The section detail and the dimension were also are given clearly in this drawing. Download the AutoCAD file now. Thanks for downloading the file and another CAD program from the cadbull.com website.
File Type:
DWG
File Size:
1017 KB
Category::
Structure
Sub Category::
Section Plan CAD Blocks & DWG Drawing Models
type:
Gold

Uploaded by:
AS
SETHUPATHI

