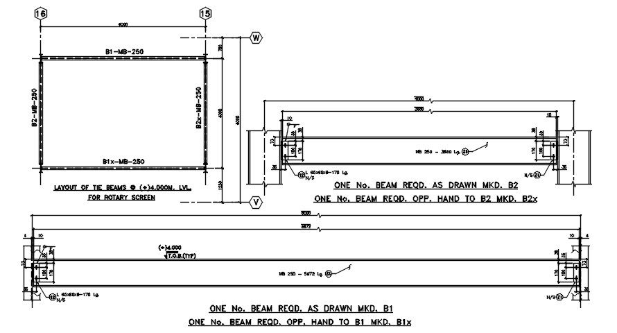
The layout of the beams for rotary screen drawing details are provided in this AutoCAD DWG file. Download the AutoCAD 2D DWG file.
Description
The layout of the beams for rotary screen drawing details are provided in this AutoCAD DWG file. Sectional details are clearly given in this drawing file. the layout of the beams, beam requirement, connection details, clear dimension drawing, and section details are given in this DWG file. These drawings are useful for civil and structural engineers. Download the AutoCAD 2D DWG file. Thank you so much for downloading the DWG file from our Requirwebsite.
File Type:
DWG
File Size:
218 KB
Category::
Structure
Sub Category::
Section Plan CAD Blocks & DWG Drawing Models
type:
Free

Uploaded by:
AS
SETHUPATHI

