Detail CAD Model Slab and Beam Layouts DWG Drawing
Description
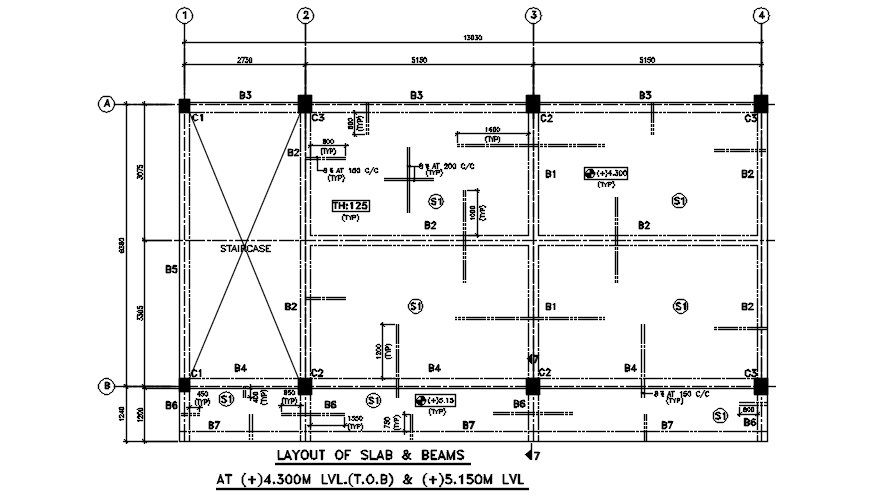
Layouts of slab and beam details are given in this Autocad 2D DWG drawing file. Staircase is provided at the left side of the slab. Placing of column and beams are mentioned in this drawing file. Length and breadth of the slab were mentioned for each. Marking also done. Thank you for downloading the Autocad file and other CAD program files from our website.
Uploaded by:

